


व्रक
(Graceful in form)
Completed - 2025
Renovation project in Jabalpur
Client: Vinod Ji
As the door opens, serenity unfolds — Lord Ganesha greets with grace untold. Sunlight dances through windows wide, Bathing each niche where treasures reside. An architects vision, calm and divine, Where art and aura perfectly align.
व्रक
(Graceful in form)
Completed - 2025
Renovation project in Jabalpur
Client: Vinod Ji
As the door opens, serenity unfolds — Lord Ganesha greets with grace untold. Sunlight dances through windows wide, Bathing each niche where treasures reside. An architects vision, calm and divine, Where art and aura perfectly align.
व्रक
(Graceful in form)
Completed - 2025
Renovation project in Jabalpur
Client: Vinod Ji
As the door opens, serenity unfolds — Lord Ganesha greets with grace untold. Sunlight dances through windows wide, Bathing each niche where treasures reside. An architects vision, calm and divine, Where art and aura perfectly align.
Transformation
How we transform spaces
Within these arches and niches, the home breathes and resonates like music. This drawing room is not just a place to sit, but a canvas of emotions hidden in its graceful curves.
Transformation
How we transform spaces
Within these arches and niches, the home breathes and resonates like music. This drawing room is not just a place to sit, but a canvas of emotions hidden in its graceful curves.
Transformation
How we transform spaces
Within these arches and niches, the home breathes and resonates like music. This drawing room is not just a place to sit, but a canvas of emotions hidden in its graceful curves.

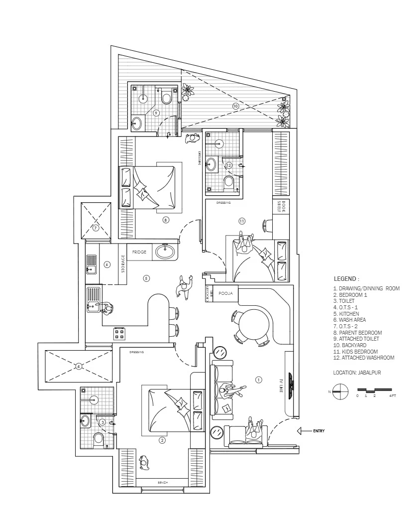
Before

After

Before

After
Living room


Before


After
Dining area


Before


After
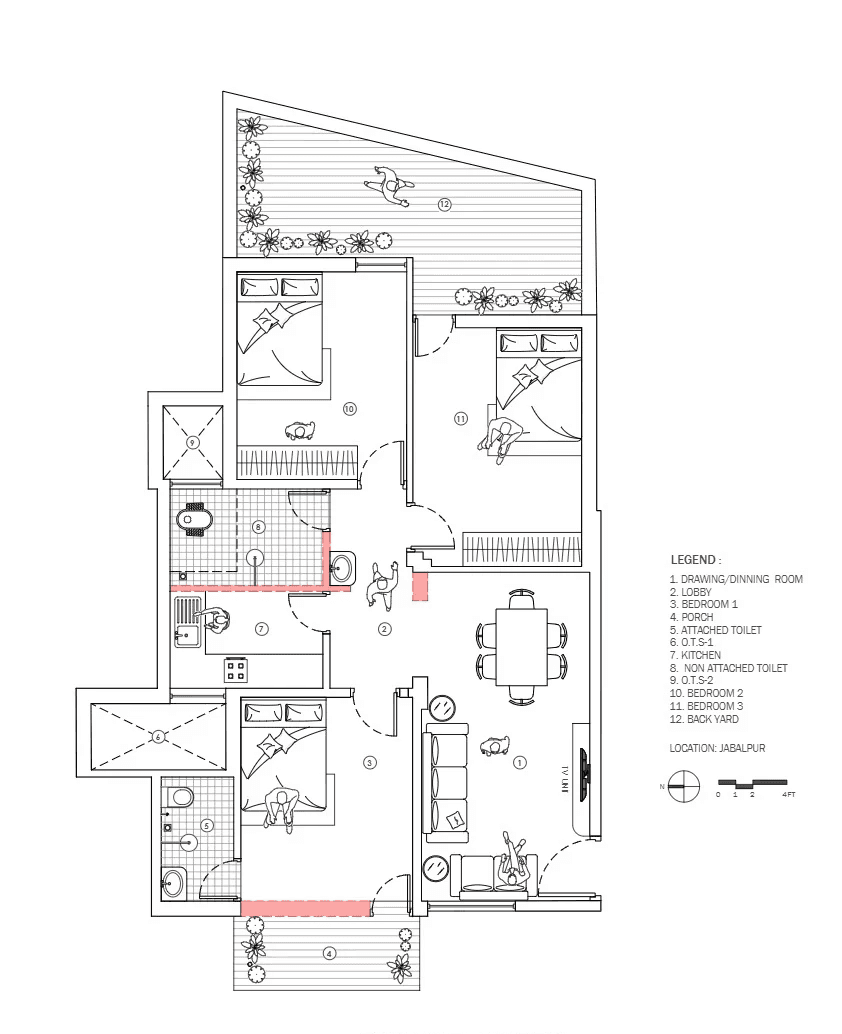
Before
What we started with
We saw beyond the walls, shaping light, function, and character into every room. Each corner was redesigned to feel open, warm, and intentional.
Before
What we started with
We saw beyond the walls, shaping light, function, and character into every room. Each corner was redesigned to feel open, warm, and intentional.
Before
What we started with
We saw beyond the walls, shaping light, function, and character into every room. Each corner was redesigned to feel open, warm, and intentional.






Our work
We delivered as promised
Soft curves trace quiet moments — a space where conversations, and reflections gently unfold in hues of pastel and stone. Every corner whispers calm, wrapped in warm elegance. A retreat designed for comfort, connection, and ease.
Our work
We delivered as promised
Soft curves trace quiet moments — a space where conversations, and reflections gently unfold in hues of pastel and stone. Every corner whispers calm, wrapped in warm elegance. A retreat designed for comfort, connection, and ease.
Our work
We delivered as promised
Soft curves trace quiet moments — a space where conversations, and reflections gently unfold in hues of pastel and stone. Every corner whispers calm, wrapped in warm elegance. A retreat designed for comfort, connection, and ease.

































Our work
From plan to perfection
See how we’ve transformed spaces with our expert craftsmanship and attention to detail.
Our work
From plan to perfection
See how we’ve transformed spaces with our expert craftsmanship and attention to detail.
Our work
From plan to perfection
See how we’ve transformed spaces with our expert craftsmanship and attention to detail.


Before


After
Testimonials
Hear from our clients
Hear from our happy clients about their experience working with Kalagya
Testimonials
Hear from our clients
Hear from our happy clients about their experience working with Kalagya
Testimonials
Hear from our clients
Hear from our happy clients about their experience working with Kalagya
I was initially looking to buy a new flat, but the design vision and interior solutions convinced me to renovate my existing home instead. The transformation has been beyond expectations—civil changes like a larger kitchen and attached washrooms for every room, combined with thoughtful interiors, have redefined the space. The detailing, aesthetics, and functionality make it feel like a completely new home within the same old walls

Mr. Vinod
I was initially looking to buy a new flat, but the design vision and interior solutions convinced me to renovate my existing home instead. The transformation has been beyond expectations—civil changes like a larger kitchen and attached washrooms for every room, combined with thoughtful interiors, have redefined the space. The detailing, aesthetics, and functionality make it feel like a completely new home within the same old walls

Mr. Vinod
I was initially looking to buy a new flat, but the design vision and interior solutions convinced me to renovate my existing home instead. The transformation has been beyond expectations—civil changes like a larger kitchen and attached washrooms for every room, combined with thoughtful interiors, have redefined the space. The detailing, aesthetics, and functionality make it feel like a completely new home within the same old walls

Mr. Vinod
