


कान्ति
(Radiance)
Completed - 2025
Renovation project in Jabalpur
Client: Khare's
A quiet transformation of everyday living, this home in Jabalpur reflects timeless charm with soft textures, warm light, and thoughtful design. From custom-made partitions to a luxurious dressing and bath space, every corner blends function and grace. Designed for comfort, built for lasting elegance. Project in association with - Ar. Ashish Chandra, Ar. Ina Sharma
कान्ति
(Radiance)
Completed - 2025
Renovation project in Jabalpur
Client: Khare's
A quiet transformation of everyday living, this home in Jabalpur reflects timeless charm with soft textures, warm light, and thoughtful design. From custom-made partitions to a luxurious dressing and bath space, every corner blends function and grace. Designed for comfort, built for lasting elegance. Project in association with - Ar. Ashish Chandra, Ar. Ina Sharma
कान्ति
(Radiance)
Completed - 2025
Renovation project in Jabalpur
Client: Khare's
A quiet transformation of everyday living, this home in Jabalpur reflects timeless charm with soft textures, warm light, and thoughtful design. From custom-made partitions to a luxurious dressing and bath space, every corner blends function and grace. Designed for comfort, built for lasting elegance. Project in association with - Ar. Ashish Chandra, Ar. Ina Sharma
Transformation
How we transform spaces
A master bedroom designed to linger in. Elevating everyday rituals—this walkin-closet blends vertical elegance with functional luxury. Flowers on the floor, fluted glass shutters, and serene lighting create a timeless royal experience
Transformation
How we transform spaces
A master bedroom designed to linger in. Elevating everyday rituals—this walkin-closet blends vertical elegance with functional luxury. Flowers on the floor, fluted glass shutters, and serene lighting create a timeless royal experience
Transformation
How we transform spaces
A master bedroom designed to linger in. Elevating everyday rituals—this walkin-closet blends vertical elegance with functional luxury. Flowers on the floor, fluted glass shutters, and serene lighting create a timeless royal experience

Before

After

Before

After
Bedroom


Before


After
Walk-in closet


Before


After
Before
What we started with
We saw beyond the walls, shaping light, function, and character into every room. Each corner was redesigned to feel open, warm, and intentional.
Before
What we started with
We saw beyond the walls, shaping light, function, and character into every room. Each corner was redesigned to feel open, warm, and intentional.
Before
What we started with
We saw beyond the walls, shaping light, function, and character into every room. Each corner was redesigned to feel open, warm, and intentional.






Our work
We delivered as promised
Calm lives in soft tones and filtered light, An apartment turned into a gentle home. Materials speak softly, the layout flows with ease, Designed for comfort, balance, and peace. A home that feels lived in and truly reimagined, Reflecting its people and life they breathe in.
Our work
We delivered as promised
Calm lives in soft tones and filtered light, An apartment turned into a gentle home. Materials speak softly, the layout flows with ease, Designed for comfort, balance, and peace. A home that feels lived in and truly reimagined, Reflecting its people and life they breathe in.
Our work
We delivered as promised
Calm lives in soft tones and filtered light, An apartment turned into a gentle home. Materials speak softly, the layout flows with ease, Designed for comfort, balance, and peace. A home that feels lived in and truly reimagined, Reflecting its people and life they breathe in.




















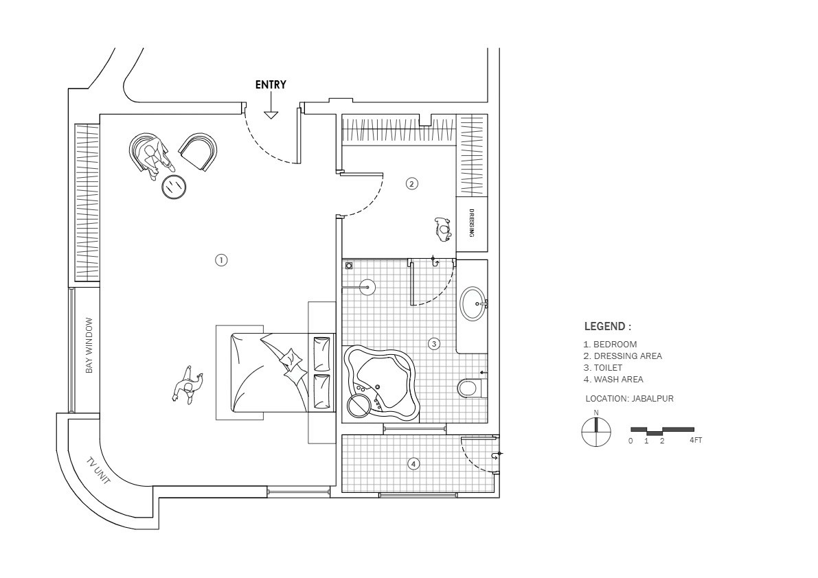
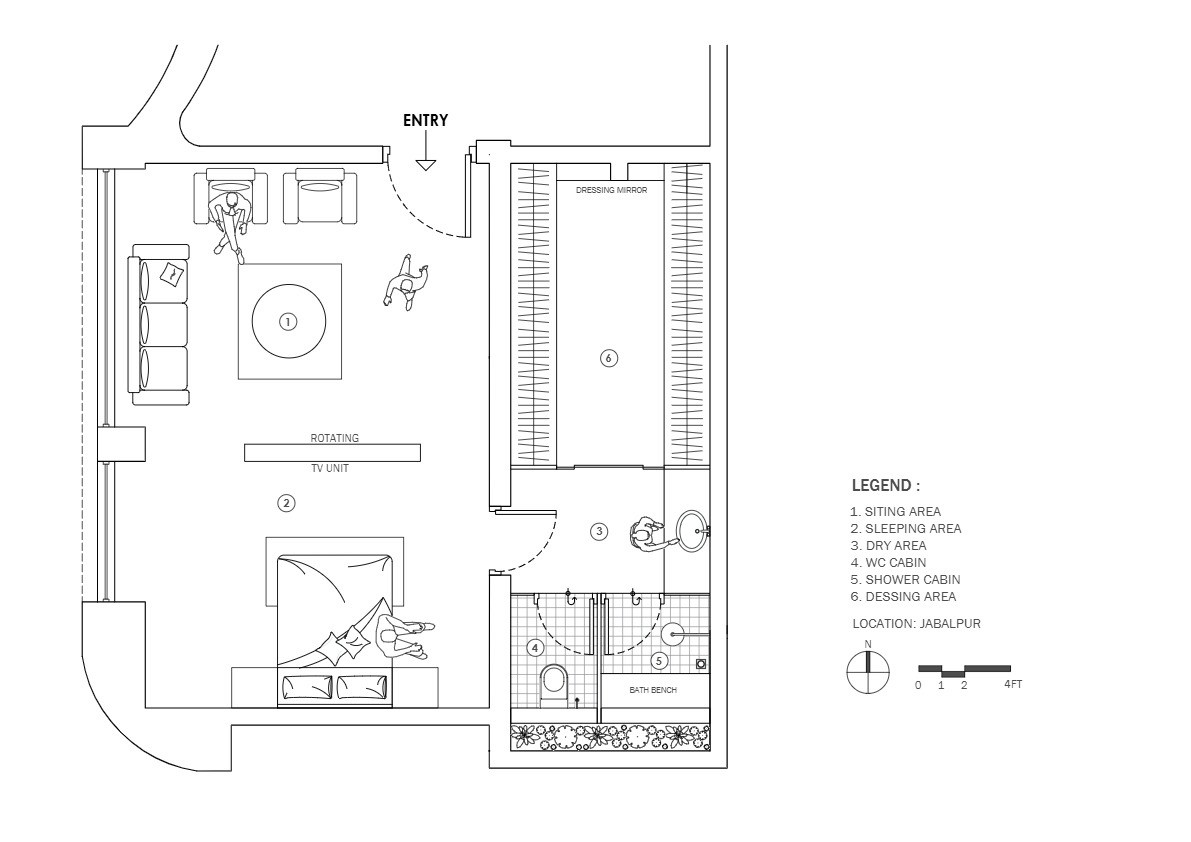
Our work
From plan to perfection
See how we’ve transformed spaces with our expert craftsmanship and attention to detail.
Our work
From plan to perfection
See how we’ve transformed spaces with our expert craftsmanship and attention to detail.
Our work
From plan to perfection
See how we’ve transformed spaces with our expert craftsmanship and attention to detail.


Before


AFter
After
After
Testimonials
Hear from our clients
Hear from our happy clients about their experience working with Kalagya
Testimonials
Hear from our clients
Hear from our happy clients about their experience working with Kalagya
Testimonials
Hear from our clients
Hear from our happy clients about their experience working with Kalagya
Kalagya did an incredible job on our house. Excellent work!

Mr. Khare
Kalagya did an incredible job on our house. Excellent work!

Mr. Khare
Kalagya did an incredible job on our house. Excellent work!

Mr. Khare





