


विहित
(Harmoniously arranged)
Completed - 2025
Renovation project in Aastha Nagar
Client: Batra's
A standard apartment in Aastha Nagar was rede signed into a warm, functional home. Each space reflects the client’s lifestyle, blending comfort with soft, elegant design. Nothing loud—just sim ple, thoughtful living. The transformation brings calm, charm, and purpose into everyday life.
विहित
(Harmoniously arranged)
Completed - 2025
Renovation project in Aastha Nagar
Client: Batra's
A standard apartment in Aastha Nagar was rede signed into a warm, functional home. Each space reflects the client’s lifestyle, blending comfort with soft, elegant design. Nothing loud—just sim ple, thoughtful living. The transformation brings calm, charm, and purpose into everyday life.
विहित
(Harmoniously arranged)
Completed - 2025
Renovation project in Aastha Nagar
Client: Batra's
A standard apartment in Aastha Nagar was rede signed into a warm, functional home. Each space reflects the client’s lifestyle, blending comfort with soft, elegant design. Nothing loud—just sim ple, thoughtful living. The transformation brings calm, charm, and purpose into everyday life.
Transformation
How we transform spaces
Where space flows free but knows its line, The living room rests by gentle design.
Transformation
How we transform spaces
Where space flows free but knows its line, The living room rests by gentle design.
Transformation
How we transform spaces
Where space flows free but knows its line, The living room rests by gentle design.

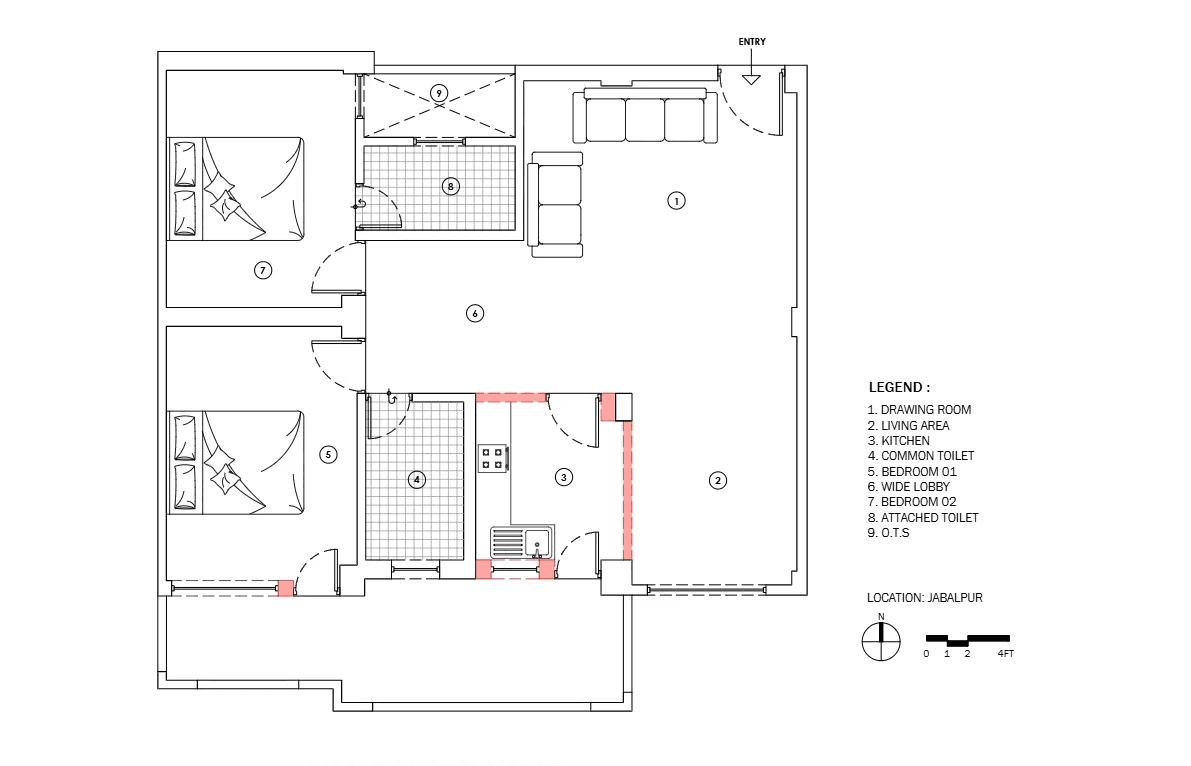
Before
We observe

Process 3D Render
We design

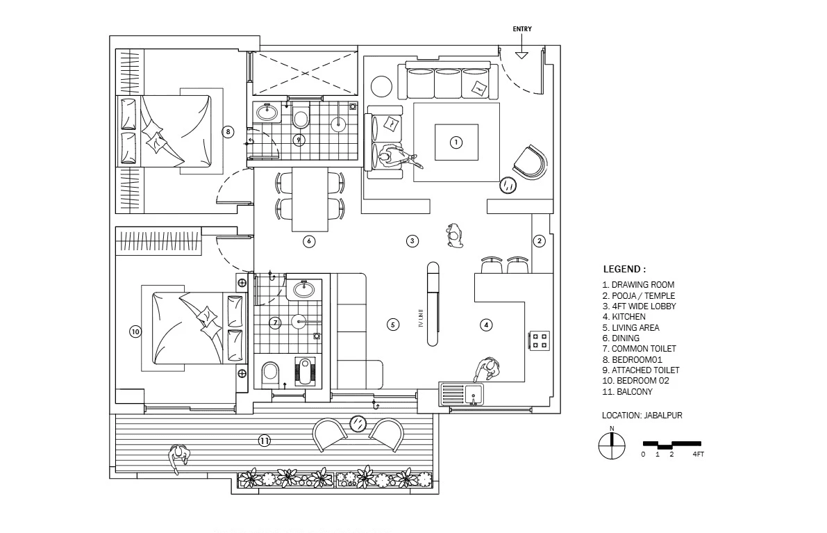
After
We deliver as promised


Before
We observe


Process 3D Render
We design


After
We deliver as promised
Before
What we started with
We saw beyond the walls, shaping light, function, and character into every room. Each corner was redesigned to feel open, warm, and intentional.
Before
What we started with
We saw beyond the walls, shaping light, function, and character into every room. Each corner was redesigned to feel open, warm, and intentional.
Before
What we started with
We saw beyond the walls, shaping light, function, and character into every room. Each corner was redesigned to feel open, warm, and intentional.








Our work
We delivered as promised
Calm lives in soft tones and filtered light, An apartment turned into a gentle home. Materials speak softly, the layout flows with ease, Designed for comfort, balance, and peace. A home that feels lived in and truly reimagined, Reflecting its people and life they breathe in.
Our work
We delivered as promised
Calm lives in soft tones and filtered light, An apartment turned into a gentle home. Materials speak softly, the layout flows with ease, Designed for comfort, balance, and peace. A home that feels lived in and truly reimagined, Reflecting its people and life they breathe in.
Our work
We delivered as promised
Calm lives in soft tones and filtered light, An apartment turned into a gentle home. Materials speak softly, the layout flows with ease, Designed for comfort, balance, and peace. A home that feels lived in and truly reimagined, Reflecting its people and life they breathe in.






























Our work
From plan to perfection
See how we’ve transformed spaces with our expert craftsmanship and attention to detail.
Our work
From plan to perfection
See how we’ve transformed spaces with our expert craftsmanship and attention to detail.
Our work
From plan to perfection
See how we’ve transformed spaces with our expert craftsmanship and attention to detail.


Before


AFter
After
After
Testimonials
Hear from our clients
Hear from our happy clients about their experience working with Kalagya
Testimonials
Hear from our clients
Hear from our happy clients about their experience working with Kalagya
Testimonials
Hear from our clients
Hear from our happy clients about their experience working with Kalagya
Shifting our kitchen into the living space once felt like an overwhelming civil leap—but trusting our instincts paid off. The enlarged windows, thoughtful partitioning, and spatial reorganisation have brought a sense of calm and privacy we hadn’t imagined in a 2BHK. Yes, we did stretch the budget slightly, but the final outcome justifies every bit. Grateful to the team for shaping our vision with care and precision

Mr. & Mrs. Batra
Shifting our kitchen into the living space once felt like an overwhelming civil leap—but trusting our instincts paid off. The enlarged windows, thoughtful partitioning, and spatial reorganisation have brought a sense of calm and privacy we hadn’t imagined in a 2BHK. Yes, we did stretch the budget slightly, but the final outcome justifies every bit. Grateful to the team for shaping our vision with care and precision

Mr. & Mrs. Batra
Shifting our kitchen into the living space once felt like an overwhelming civil leap—but trusting our instincts paid off. The enlarged windows, thoughtful partitioning, and spatial reorganisation have brought a sense of calm and privacy we hadn’t imagined in a 2BHK. Yes, we did stretch the budget slightly, but the final outcome justifies every bit. Grateful to the team for shaping our vision with care and precision

Mr. & Mrs. Batra

