


ऊर्ध्वम्
(Upwards)
Completed - 2025
Renovation project in Jabalpur
Client: Aman Jain
Set in Jabalpur, this home reflects a quiet yet confident transformation. Designed with clarity and clean lines, it brings balance between function and calm. Every space flows with intention—simple, warm, and human.
ऊर्ध्वम्
(Upwards)
Completed - 2025
Renovation project in Jabalpur
Client: Aman Jain
Set in Jabalpur, this home reflects a quiet yet confident transformation. Designed with clarity and clean lines, it brings balance between function and calm. Every space flows with intention—simple, warm, and human.
ऊर्ध्वम्
(Upwards)
Completed - 2025
Renovation project in Jabalpur
Client: Aman Jain
Set in Jabalpur, this home reflects a quiet yet confident transformation. Designed with clarity and clean lines, it brings balance between function and calm. Every space flows with intention—simple, warm, and human.
Transformation
How we transform spaces
Elevating everyday living: witness the transformation of this living room into a masterpiece of design and comfort
Transformation
How we transform spaces
Elevating everyday living: witness the transformation of this living room into a masterpiece of design and comfort
Transformation
How we transform spaces
Elevating everyday living: witness the transformation of this living room into a masterpiece of design and comfort

Before
We observe

After
We deliver as promised


Before
We observe


After
We deliver as promised
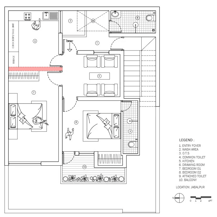
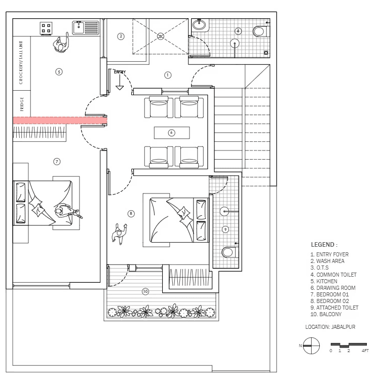
Before
What we started with
We saw beyond the walls, shaping light, function, and character into every room. Each corner was redesigned to feel open, warm, and intentional.
Before
What we started with
We saw beyond the walls, shaping light, function, and character into every room. Each corner was redesigned to feel open, warm, and intentional.
Before
What we started with
We saw beyond the walls, shaping light, function, and character into every room. Each corner was redesigned to feel open, warm, and intentional.








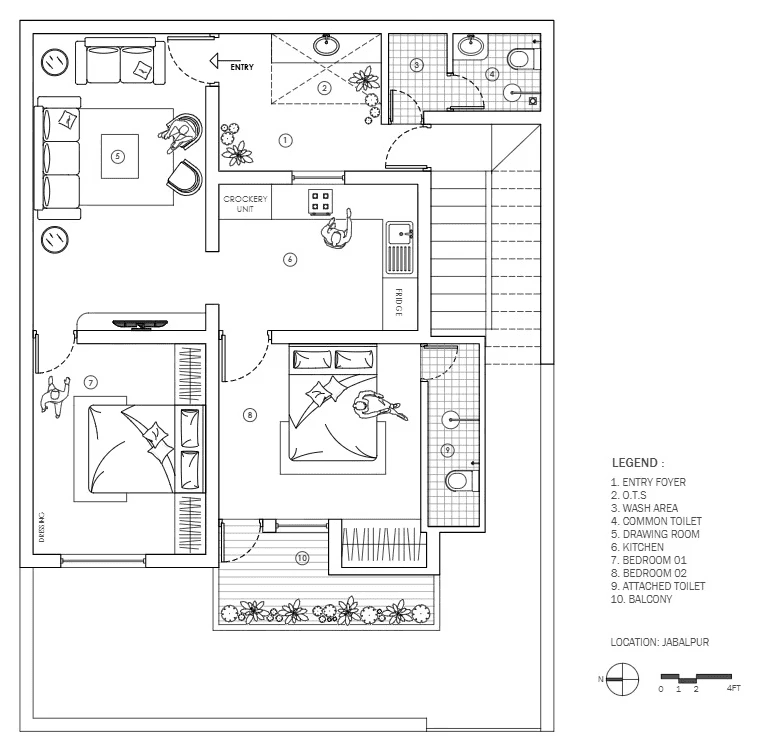
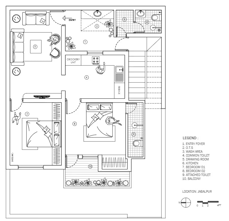
Our work
We delivered as promised
Patterns pop, but never loud. Light pours in, soft and proud. Comfort lives where calm is allowed. A space that smiles without a sound
Our work
We delivered as promised
Patterns pop, but never loud. Light pours in, soft and proud. Comfort lives where calm is allowed. A space that smiles without a sound
Our work
We delivered as promised
Patterns pop, but never loud. Light pours in, soft and proud. Comfort lives where calm is allowed. A space that smiles without a sound


















Our work
From plan to perfection
See how we’ve transformed spaces with our expert craftsmanship and attention to detail.
Our work
From plan to perfection
See how we’ve transformed spaces with our expert craftsmanship and attention to detail.
Our work
From plan to perfection
See how we’ve transformed spaces with our expert craftsmanship and attention to detail.


Before


After
Testimonials
Hear from our clients
Hear from our happy clients about their experience working with Kalagya
Testimonials
Hear from our clients
Hear from our happy clients about their experience working with Kalagya
Testimonials
Hear from our clients
Hear from our happy clients about their experience working with Kalagya
They didn’t just change walls and materials—they reimagined our lifestyle. The transformation was nothing short of magical—from relocating the kitchen for better flow to expanding the drawing room into a warm, inviting space for gatherings. The wash area, which once greeted us at the entrance, has now been turned into a stunning entry foyer that sets the tone for the entire house. Every corner, every detail, every material choice speaks of intent and excellence. This was not just a renovation—it was a revival. We’re deeply grateful for the passion, precision, and vision they brought into our home.

Aman Jain
They didn’t just change walls and materials—they reimagined our lifestyle. The transformation was nothing short of magical—from relocating the kitchen for better flow to expanding the drawing room into a warm, inviting space for gatherings. The wash area, which once greeted us at the entrance, has now been turned into a stunning entry foyer that sets the tone for the entire house. Every corner, every detail, every material choice speaks of intent and excellence. This was not just a renovation—it was a revival. We’re deeply grateful for the passion, precision, and vision they brought into our home.

Aman Jain
They didn’t just change walls and materials—they reimagined our lifestyle. The transformation was nothing short of magical—from relocating the kitchen for better flow to expanding the drawing room into a warm, inviting space for gatherings. The wash area, which once greeted us at the entrance, has now been turned into a stunning entry foyer that sets the tone for the entire house. Every corner, every detail, every material choice speaks of intent and excellence. This was not just a renovation—it was a revival. We’re deeply grateful for the passion, precision, and vision they brought into our home.

Aman Jain
